|
|
![]() |
1. FRUIT GROUP |
![]() |
You may know the fruit group
as the flesh that grows around seeds. Some examples of fruits are tomatoes,
bananas, squash, oranges, and pawpaw.
Most fruits provide minerals
and vitamins and some provide a lot of energy. There are many different
vitamins and minerals, and we require small amounts of them all, so It
Is the best plan to share several different kinds of fruit In the family
each day.
On this page 1ist the fruits
common In your area and write the time of year they are harvested and the
cost during that_______________ time.
Eat Some Fruit At Every Meal
( a little bit will
do)
|
|
2. VEGETABLE GROUP |
|
Leaves, roots, stems, and
buds of plants are all part of the vegetable group, Some vegetables are
potatoes, spinach, and carrots.
The vegetable group has even
more vitamins and minerals than the fruits. People who don't eat enough
vitamins might have problems such as coarse or dry hair; red rough skin;
skin that bruises very easily, sore crusty eyelids; gums that are red and
swollen; or even night blindness.
For example, vitamin A prevents
night blindness. It Is found In dark leafy vegetables such as Casava leaves
or Papaya leaves. What are some vegetables In your area that are dark and
leafy? What time of year are they available?
Eat Some Vegetable At Every Meal
(a little bit will
do)
|
|
3. BREAD, CEREAL, AND SEED GROUP |
OLD CD AND FIND THIS PICTURE |
|
All foods that have seeds
that grow exposed are the bread, cereal and seed group. Some foods In this
group are rice, wheat, and corn, and foods that are made from the flour
of these seeds.
This group of foods Is mostly
an energy group and supplies some vTtamin5 and minerals, but only If you
eat the whole grain. That means rice that has been left brown, wheat that
is ground whole or eaten as cracked wheat, and corn that Is ground whole.
This group can also have body building qualities when eaten with foods
In the legume group, (rice and dahl, wheat bread made with soy flour).
Someone who doesn't eat enough
of this group of foods may feel a lack of energy, or their tongue may become
swollen.
What are some foods In this
group available here?
FOODS IN LEGUME GROUP
THAT MIGHT BE USED
FOOD COSTS WITH THIS GROUP
|
|
|
FOODS IN LEGUME GROUP THAT MIGHT BE USED WITH THIS GROUP |
| _______________ | _______________ | _______________ |
| _______________ | _______________ | _______________ |
| _______________ | _______________ | _______________ |
| _______________ | _______________ | _______________ |
| _______________ | _______________ | _______________ |
| Grains Are Usually The Cheapest Source Of Energy They Must Be Eaten At Every Meal |
![]() |
Foods that are seeds grown
In pods are foods In the legume group. Some legumes are peanuts, beans
and peas.
This group of foods, when
eaten with foods from the seed group, makes good body building foods, and
the combination is especially Important where very little food from animals
Is eaten. People who don't eat enough of this group of foods may experience
tiredness or lack of energy.
List some common legumes
or beans available to you.
|
|
|
FOODS IN SEED GROUP THAT MIGHT BE USED WITH THIS GROUP |
|
_______________ |
_______________ |
_______________ |
|
_______________ |
_______________ |
_______________ |
|
_______________ |
_______________ |
_______________ |
|
_______________ |
_______________ |
_______________ |
|
_______________ |
_______________ |
_______________ |
One Measure of Legume for Every Three Measures Of Grain Is A Good Combination And Should Be Eaten At Every Meal. |
|
|
5. FOOD FROM ANIMALS GROUP |
|
All foods that come from
animals are animal foods. Some animal foods are cheese, milk, eggs, chickens,
and fish.
Animal foods are body building
foods, but when you don't eat enough energy foods, body building foods
will be used for energy instead. This group gives iron and some vitamins.
Body building foods are needed for growth and helping the body fight infections.
Someone who doesn't eat much food from animals can get body building foods
by eating legumes with seeds, cereals, and breads.
What are the foods from animals
available to you?
|
available to you |
food |
|
|
_______________ |
_______________ |
_______________ |
|
_______________ |
_______________ |
_______________ |
|
_______________ |
_______________ |
_______________ |
|
_______________ |
_______________ |
_______________ |
|
_______________ |
_______________ |
_______________ |
You Don't Need Much, But Some Food From Animals Should Be Eaten At Every Meal. |

Using the five fingers of
a hand makes it easy to remember the five food groups. It Is easy for mothers
to plan something from each food group to every meal. If mothers do so,
their families will have better vitality and well be less likely to become
ill.
Eating some of each food
group at every meal will insure that a person has enough of the energy
foods, building foods, and protective foods that he needs.
![]() |
ANOTHER WAY TO TALK ABOUT VALUE FROM FOOD The five food groups contain
energy foods, body building foods, and protection food. ENERGY FOODS Energy foods help us to move
about and perform work. Energy is measured In calories or energy units.
Some people need more calories (energy units). Young children need calories
(energy units) to grow and play. As a person grows old he doesn't need
as many calories (energy units). People who do hard work like
digging in a field need more calories (energy units) than people who sit
most of the time. People who iive In cold places
need more calories (energy units) to keep warm than people who live In
warm places. Pregnant Women need extra
calories (energy units) to build the new cells (building blocks) that make
up the new baby. She is also growing in size and needs more calories (energy
units) for movement and work. Nursing women need more calories
(energy units) to help her body produce the right amount of milk for her
baby. On the following page is a table of energy requirements per day for different ages and types of work. |

TABLE OF ENERGY REQUIREMENTS
| CALORIES PER DAY
. . I to 2 years 1000 3 to 4 years 1200 5 to 6 years 1400 7 to 8 years 1600 11 to 12 years girls 2200 11 to 12 years boys 2000 13 to 17 years girls 2500 15 to 18 years boys 3000 pregnancy 2900 lactation (nursing women) 3400 adult man 2400 adult man very active 3000 adult woman 2200 adult woman very active 2500 |
||
There is some energy in all
foods. Most people get most of their energy from grains and legumes. It
takes almost exactly a kilogram of dry grain and legumes a day to provide
3,400 calories for an active nursing woman.
![]() |
Body Building foods (proteins)
are needed to:
1. Grow when a child
is growing he needs body building foods.
2. Repair and maintain body
parts the cells (building blocks of the body ) are always changing
and getting worn out. They have to be repaired and replaced. When the body
Is hurt, body building foods are needed to repair It.
3. Keep the body in working
order your body gets protein (body building foods) when you eat these
foods.
animal products group
animal products give you complete body building units. You get body
building units when you eat eggs, milk, meat, cheese and fish. Young babies
get body building units from their mother's milk.
breads, cereals, seed
group and legume group when eaten separately usually give only a
part of body building unit. When you eat them together you get a whole
body building unit.
Here are some bread, cereal,
seed group and legume group examples. They can be eaten together In any
combination as long as you eat one from each group In the following proportions:
1. Use 1 1/2 cups grain for 1/2 cup beans (ratio 3:1)
2. Use some milk with every
dish that is mainly beans
______________________
There are many common combinations
of seed and legume groups served In every part of the world. Some of these
combinations are listed here:
rice and bean casserole wheat crackers and pea soup
wheat and soyflour bread bread and peanut butter
corn and soyflour bread sesame salt on bean casserole
wheat bread and baked beans roasted sunflower seeds and peanuts
rice and dahl (lentil) curry rice and soy bean curd.
rice and peas
corn tortillas and kidney
beans
![]() |
Body Building Foods cont'd |
|
Whole Wheat, Rye, Oats Blackeyed Peas, Split Belgar, Brown Rice, Macaroni Peas, Full Lentils Barley Buckwheat, Noodles Chick Peas, Mung Beans Wheat Bran, Millet, Grain Lima, Soybean Curd Sorgham (Tofu), Kidney, Navy |
![]() |
Protective foods help to
protect your body from getting sick and help It work well. It Is the vitamins
and minerals In the protective foods which help us. In the following pages
is a chart with some of these vitamins and minerals and some helpful Information
about them. |
![]() |
![]() |
![]() |
![]() |
![]() |
|
| NEWBORN 6 MONTHS |
Breast milk is
the perfect food for a baby. It has the right amount of protein (body building
food) the baby needs to grow. It also has plenty of calories (energy food)
as well as vitamins and minerals (protection food). The milk that comes
from a mother's breast the first few days is thin and watery and is called
colustrum. It Is very good for babies, so they should be put to their mother's
breast as soon as they are born. Breast milk alone is enough for the first
six months of a child's life. The mother needs to eat more protein and
protective foods which she nurses. When a baby is 6 months old,
he has become so big that breast milk is not enough by Itself. If a child
is to continue to grow, he must also start eating a thin porridge. His
mother can make the porridge by boiling maize, millet, casava or rice In
water. This porridge should be given once a day when the baby Is most hungry.
When he is eating the porridge well, he can have a cup of it 2 or 3 times
a day In 2 or 3 weeks when the baby is eating plain porridge with some body building protein foods need to be mixed with It. Animal products such as dry milk powder and egg should be added. The mother can also use the liquid in which she cooks the legumes(seeds In pods) In place of plain water. |
![]() |
![]() |
||
| Other foods the
mother should add to the porridge as the baby gets older are pounded groundnuts,
groundnut butter, mashed skinned beans and pounded fresh fish. At least
once a day the baby should eat some protectionfood such as dark green
leaves or fruit. The mother should be sure that the food she adds to the porridge are cooked, mashed and mixed in well. Because mother's milk is an important was the baby gets body building protein, a mother could go on breast feeding her child until he is eighteen months or two years old. |
![]() |

AN ADEQUATE FOOD
PROGRAM FOR THE VILLAGE
![]() |
![]() |
|
There Is a formula on this
page to figure out the amount of grain needed to provide enough energy
to everyone in the village for a whole year.
Here are some facts you must
know to understand the formula:
A calorie is a measurement of energy that you get from food.
3,000 cal per day is the number of calories used by a man at active work.
365 days is the number of days In a whole year
3400 cal is the number of calories provided by a kilogram of grains such as rice, corn, wheat or sorghum and is approximately the number provided by a kilogram of legumes.
Here Is the formula:
| 3,000 cal x
365 days x population of village
3400 cal |
= kilograms of grain needed each year |
The local farmers usually
know almost exactly how much land Is being used for crops and how much
of each crop Is produced for each section of land, so It Is possible to
figure out how much food Is grown altogether by the farmers of the village.
Compare this amount to the amount that the formula says you need In
a year. When there Is less food produced than Is needed, plans must be
made to Increase production on land already farmed or to Increase the amount
of land being farmed. Where there Is more than enough food being grown,
some of the food can be sold for cash outside the village, and plans can
be made to grow a variety of crops to Improve the diet available In the
community.
The health guild usually
works with the agriculture guild to make plans that will guarantee enough
food will be grown to feed the whole village. Next the health guild must
work with the commerce guild to be sure that the food produced by the village
farmers will be made available at a just price to people In the village
who have little land and must purchase their food. Working together, the
guilds can be sure that everyone In the village has enough food to do his
work.
![]() |
|
1. You need to eat food from
ell five food groups at every meal.
2. Eat fruits and vegetables
raw to get the most food value. Those which are cooked should be cooked
with the skins on.
3. Liquids from cooking should
be saved and used in soups or drinks.
4. Whole grain is better
for you than grain which has been milled, hulled or bleached. Eat brown
rice instead of polished rice. Eat whole wheat flour Instead of white bleached
flour.
5. "Enriched" means
the flour has had some of its nutrients put back into it. It is better
for you than white bleached flour but not as good as whole grain flour.
6. Darker green leaves and
darker orange color of vegetables and fruits have more vitamins (such as
Vitamin A) than leaves which are light green and vegetables and fruits
which are light orange.
7. Sprouted beans are a good
source of Vitamin C.
8 If fruits and vegetables
are likely to be contaminated, they must be disinfected or pealed before
eating raw. To disinfect, wash thoroughly, soak for 30 minutes In pure
water with added disinfectant (Clorox or Lugol's solution). Rinse thoroughly.
![]() |
|
|
A survey is taken by going
to many or all of the houses In the village and asking the same questions
at each house. For a family nutrition survey, you world ask in every house
about what foods were eaten by the members of the household during the
past 24 hours. In our survey we would then ask how the food was prepared
and whether the family grew that food Itself or purchased that food.
In our nutrition survey,
we also measure the arm circumference of children between the ages of I
to 5. This gives us Information about how well these children have been
fed during the past year.
After you have filled in
the part of the survey that the people give answers to, you can find all
the foods they mentioned In a "food value table" and find out
how many calories and how many grams of protein were eaten by a family
that day.
By thinking about the answers
we find to our questions, we can figure out what problems of nutrition
still remain to be worked on by the health guild. Here are some examples
of what we might find out on the survey and what we would then know about
the village.
If you find that very few families
are eating enough calories and many
children have very thin arms …………. then you know that the village must
work very hard on Increasing food
production.
If you find that most families
have enough to eat, but a few
families do not have enough ………….. then you know that there Is enough
food produced, but you must figure
out how to help Individual families
Increase their family Income
If you find that few families
can understand the five food
groups ………………………………. then you know !that you must Improve
your system for teaching about five
food groups at every meal.
If you find that families know
about the five food groups
but do not eat these foods …………… then you know that you must teach
people how to find or grow the
varieties of food they need.
![]() |
(refer to section on surveys in Vitality Maintenance Chapter) |
1. The lefthand portion
of the chart is to be completed during the conversations with the family.
The right two columns are for calculations to be made during the evaluation.
2. Record all food consumed
by the family, even If not prepared by the homemaker (don't forget to Include
mother's milk if child Is nursing).
3. Determine amounts as close
as possible. Make estimated In cups (250ml.) The amount which can be held
In one (woman's) hand Is approximately onehalf cup; two hands cupped
together (double handful) holds 1 cup.
If mixed food is prepared,
find out exactly what went into it such as

5. Children's Arm Measurements:
measure arms of all children ages 15 years. Instructions follow for
preparing and using measuring tape. Record on page following Survey Chart,
the number of children In each family and the color the arm band measured
for each child.
![]() |
![]() |
CHILDREN 15 |
Tape can be made from thin
cardboard, or any nonstretching material. It should be 1cm wide and
40cm long. It is given three colors.
example of colors: red severe malnutrition
yellow mild malnutrition
green - normal nutrition

Choose color for the malnourished
area that signifies danger In that culture.
HOW TO USE TAPE:
Measuring the upper arm of
the child is most helpful if done every 6 months, for 15 year olds
only.
Tell the child to stand relaxed
with his arm at his side.
Place the tape around the
middle of his upper arm.
Be careful the tape Is not
too tight or too loose (should be snug but not dent the arm).
Note the color the child's
measurement Is and record on sheet labeled "arm band measurement"
It is good to record the
total village data on a chart and place it in a public space. Compare these
results to the results of a survey done six months previously to see how
the nutrition of the children has improved over that period of time.
![]() |
![]() |
purpose to show new foods, show new ways to grow food to have food for community kitchen to encourage home gardens Basket give to families
to take home. Good for plants like tomatoes. May need to stake vine plants. Barrel any available
container can be used. Put 12 Inches of loose stones in bottom, add
sold. Have holes in bottom for drainage. Have near house and water with
used kitchen water. Flower Beds use areas
next to house. Easy to water and can be protected from animals. Window Box can grow
small vegetables, like lettuce, onions. Good for elders and crowded places.
Need some sun during day. |
![]() |
Plant crop that supplies
needed nutrition for village. The nutrition survey will tell you what is
most important.
The garden needs to be near
water (irrigation) or have enough rainfall. There needs to be good drainage.
Fencing may be needed if
small animals or children are a problem.
| SHADED
SEED BED |
This is a way to plant seeds and have plants ready to put in the ground as soon as the present crop is harvested. |
![]() |
![]() |
COMPOST HEAP Leaves, weeds, vegetables
and fruit peels, fish and chicken bones, tea leaves, cornstalks, animal
manure, ashes. Bedding and droppings from small animals (chickens, rabbits,
goats) Protective cover needed in
rainy areas There will be files and Insects.
Have away from houses |
Organic Compost Box layer: sawdust manure dry leaves wet garbage sawdust |
1. finished 2. working 3. for turning |
Turn between box 2 and 3 every couple days. Water compost if is is dry.
Keep damp, not wet. Add some wet and some dry material. Sawdust is a filler.
Use other local things for
sawdust, like chopped straw.
Compost is usable in 34
weeks.
Use compost material to add
to soil, and make plants grow better.
|
Good Compost Feeds The Soil For Better Garden Grown Crops. |
![]() |
|
Food is what we eat. Nutrition
is how our bodies use food. Both are important to bodybuilding and
to staying healthy. Good nutrition is necessary for people to be able to
take part in the community. Calories (energy units) are what give you energy
to participate fully in the community.
There is a need then, in
Global Social Demonstration for proper nutrition. A Community Kitchen one
way to teach and enable a community to feel the difference that getting
enough of the right foods can make. To begin with you need to decide the
nutritional needs of the people in the village by looking at the babies,
children, youth and adults through the survey. It is easier to get food
to people after you decide what foods they need.
To begin, choose a food that
is already eaten by most of the people. Something simple like bread with
a spread is a good start. Bread with peanut butter Is an example. After
supplying calories (energy foods), body building foods (protein) should
be of concern. Protein's are very important because they keep the body
strong and healthy, repair. it when it Is hurt, and give the building blocks
needed for growth. Proteins (body building foods ) are in animal foods
such as eggs, yogurt, cheese, fish and also In legumes when eaten together
with foods made from grain such as cereal or bread or rice.. Bread with
peanut butter, tortillas and beans, rice with lentils are examples.
After calories (energy food)
and proteins (body building foods) are made available, vitamins and minerals
(protective foods) are needed. One way to insure getting several vitamins
and mineral s is to 11st the twenty most common foods, the cost of these
foods and when they are available during the year. Try to list foods in
all of the Five Food Groups. Be sure to use foods from each group.
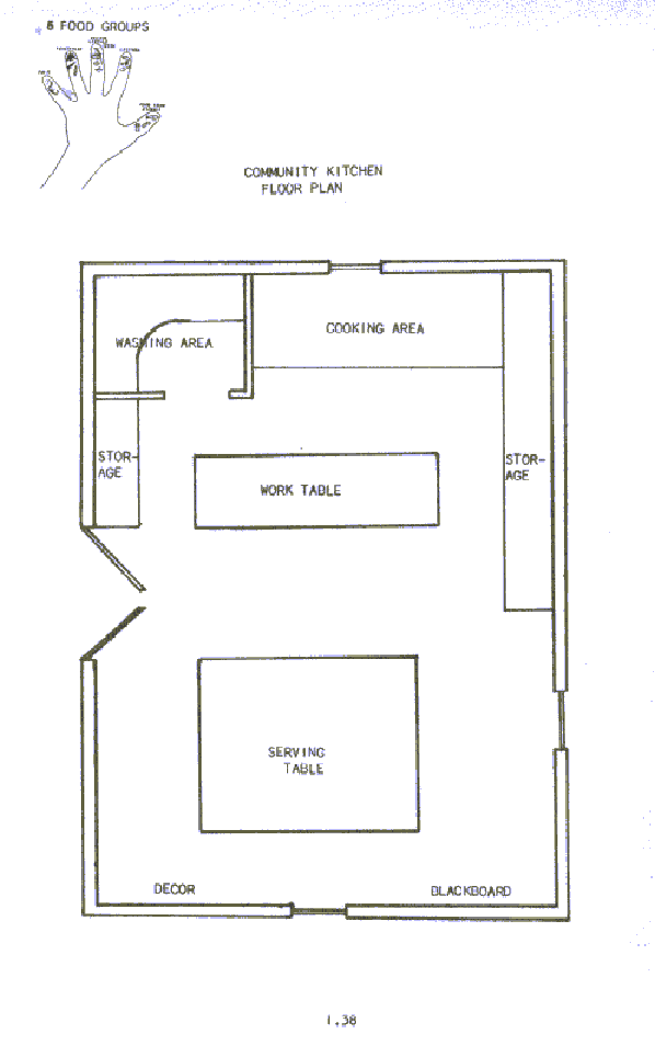
The Community Kitchen doesn't
need to have complete meals or a building in which to get a nutrition program
started. The most simple community kitchen is located in a house that is
not otherwise fully used. Plan for enough cooking space so that several
people can work together in the kitchen. Arrange the kitchen so it will
be an example of good food storage and cleanliness.
The first step might be to
make snacks for the guild meeting or meals for a work day. Rice balls with
soy bean filling or bread and peanut butter are examples. You can then
begin to make meals for the preschool and start the motherinfant
feeding program. If food Is a critical need in the village, you may decide
to offer a daily meal for everyone. As a general rule, it is best to offer
a daily meal in the context of some other structure such as literacy classes,
daily guild meetings, or work core meeting.
Community Kitchen staff must
be willing to get people to try some new foods. Keep in mind that most
people don't eat a lot of new food the first time they taste it. Nutrition
teachers have learned that you should offer a new food at least six different
times before you conclude that the people of the village will not learn
to like it. In addition to teaching good nutrition habits, the community,
kitchen trains the community in sanitation and large group events.
Once the program is going
well, the community may decide it is necessary to build a place planned
just for the community kitchen. The building should be built as simply
as possible, using local materials. It should show that a building can
be made which keeps insects and rats out of the food storage and cooking
area. A good latrine should be provided nearby. A kitchen garden will not
only supply some of the foods eaten, but will keep the appearance of the
area good. In some climates, only a floor, roof and benches are required
to give people a place to eat. If it is convenient and nice to look at,
people will be encouraged to use the Community Kitchen as a Community Meeting
Place.
![]() |
![]() |
|
The following list of equipment
is meant as a resource. The exact equipment needed in each project will
depend on local cooking practices and village size. Keep in mind that equipment
is not necessary to begin the community kitchen dynamic and will probably
be acquired gradually,
Large Equipment: Burners with table
Oven
Refrigerator
Food preparation table
Shelves for dishes and cooking equipment
Enclosed food storage area
Small Equipment: Large pots
Large frying pans
Mixing bowls
Cooking utensils
Knives
Rice Cooker
Grinding stones
Chopping block
Dishes
Garbage bucket with lid
Trash bucket
Towels
Pot holders
Aprons
Broom and mop
Dish cloths
Soap
Disinfectant
![]() |
|
Sanitary practices in the
kitchen are necessary to prevent the spread of disease
WORKERS Wear clean clothes or clean aprons
Wash hands with soap and water before beginning work and after
using the toilet
Clean and cut finger nails
People with cuts and sores
on hands should not work In kitchen
KITCHEN Clean stove, food preparation areas and eating areas after each
meal or snack
Mop floor once a day
Clean food storage areas as necessary
Use soap or disinfectant
for all cleaning
COOKING Prepare and cook food on tables raised up off floor
Wash food preparation utensils {knives, spoons, etc.) before
using on a second food.
DISH Scrape all food into garbage bucket
WASHING Wash dishes In soapy water with an added disinfectant such as
chlorine bleach (2 Tlb/gallon)
Rinse dishes in very hot water
Allow dishes to dry in drainer
must be dry before storing
GARBAGE Have 2 containers one for food garbage one for trash (paper
cans, bottles)
Garbage containers must have a lid
See sanitation section for
disposal methods
![]() |
|
|
DRY STORAGE
Foods such as grains, flours,
sugar and beans should be kept in jars or tins with tight fitting lids.
These should stand on a shelf above the floor in a cool, dry storeroom.
VEGETABLES AND FRUI TS
Keep vegetables and fruits
in baskets on a raised shelf. All vegetables and fruits should be well
washed and disinfected If necessary, before use (see helpful facts about
food) Refrigeration, If available, will preserve these foods longer. Vegetables
and fruits can be preserved for long term storage by drying. Wash foods
thoroughly and cut off rotten spots. Put them in the sun, in a protected
place, on a mat for several days until completely dry. When dry, they can
be stored in tightly closed tins In a cool, dry storeroom.
MEATS
Meats are best kept under
refrigeration and will stay fresh for 24 days. If refrigeration is
not available, large pieces of meat (I kilo or more) and whole, gutted
chicken can be kept for 24 hours by the following method. Boll meat until
well done, immediately after purchase, Keep in same water and same pan
covered. Every 12 hours bring to a boil (not simmer) for 10 minutes.
Boll it again immediately before use. In freezing climates, meats can be
stored outside In protected covering.
MILK
Milk Is best kept under refrigeration.
If this is not available, milk can be kept by boiling for 20 minutes Immediately
after purchase, pouring into a clean jug, covering well and keeping in
a clean place. If milk curdles, it can be used for making cheese or pour
on garden for fertilizer.
![]() |
|
![]() |
|
1. Limit of size 3
feet
2. Use chicken wire as shelves
3. Build side frame with
l" by 2" slats
4. Build top and floor with
wood
PRINCIPLE: The water drips
over the cloth, down through the charcoal and is cooled by the air.
![]() |
The preschool feeding
program is designed to provide half the calories and all the protein needed
for a child 3 6 years old. This can usually be done by serving one
portion from each of the 5 food groups. The foods are given as a snack
and meal, as children cannot eat so much at one meal.
Below are 3 sample menus.
In the blank column, fill in possible menus for your preschool.
![]() |
U.S.D.A. surplus commodity
foods are sometimes available through C.A.R.E. or Catholic Relief. While
their use is justified in the face of severe malnutrition, their use must
not be allowed to dampen resourcefulness and ingenuity in using local resources.
Local peopleneed to be trained in use of locally grown foods rather
than imported commodities.
![]() |
(WSB) |
WHAT IT IS
WSB is a supplementary food
obtainable from Catholic Relief Services around the world. It is made from
73% wheat and wheat products, 20 $soy bean flour, 4% refined soy bean
oil and 3% vitamins, minerals and iodized salt.
HOW TO USE IT
WSB is precooked, making
it easy to use and easy to digest. It has very little taste so that each
community using it can add to it the flavoring it likes best. Recipes for
its use can be obtained from Catholic Relief Services.
ITS VALUE
50 grams of WSB dally can
supply most of the vitamins and minerals required by a 13 year old
child. Its protein (a good quality mixture of cereal and legume protein)
contributes over 40% of the child's dally requirement. However, It is not
a complete weaning food because it is not very high In calories
![]() |
|
|
It is possible to find food
value tables that list the food values for the specialty foods eaten in
your area of the world. Inquire at a local hospital food department, or
the National Nutritional Institute. The chart below will provide an estimate
that will allow you to proceed until you can get more adequate information.
![]() |
BIBLIOGRAPHY
NUTRITION
1. Nutrition Rehabilitation,
Its Practical Application, Joan Koppert S.R.N., Trimed Books Ltd.,
London 1977
2. Community Participation
and Nutrition, (Kassa Project, India) UNICEF
3. Pediatric Priorities in
the Developing World, David Morley, M.D. M.R.C.P., D.C.H., Butterworths,
London, 1973.
4. Diet for a Small Planet,
Frances Moore Lappe, Ballantine Books, 1971
5. Sun Dry your Fruits and
Vegetables, United States Department of Agriculture, 1958. A Global Handbook
6. Food Scorecard, Center
for Science in Public Interest, 1779 Church Street, N.W. Washington, D.C.
7. Applied Nutrition Program,
(Children Services Program, India) UNICEF.
8. Uqonjwawa Ukosefu Wa Chakula
Bora, East African Literature Bureau, Dar Es Sataam.
9. "Nutritional Planning
and Development," AID War on Hunger, State Department, Washington,
D.C., May, 1977
10. Nutrition for Developing
Countries, Maurice King, David Morley, Oxford University Press, London,
1972.
Food Tables Available
11. Nutrition Value of Foods,
U.S. Department of Agriculture, Home and Garden Bulletin # 72, Revised
April 1972.
12. Composition of Foods,
Agriculture Handbook # 8, United States Department of Agriculture, Washington,
D.C. Revised 1963.
13. Food Composition Tables,
(for Caribbean use), Caribbean Food and Nutrition Institute, 1974.
14. Food Composition Tables,
(Recommended for use in Philippines), Food and Nutrition Research Center,
National Science Development Board, Manila, Philippines.